Längere Zeit stockte es mit der Realisierung des Mietwohnungsbaus auf einem Teil der Fläche des ehemaligen Freibads am Wiesenredder. Ursachen waren vor allem die Corona-Pandemie und die daraus entstandenen starken und unübersichtlichen Kostensteigerungen im Bauwesen.
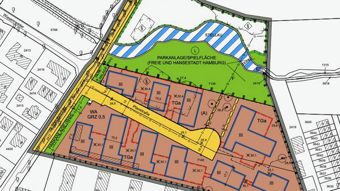
Jetzt aber soll es zügig vorangehen. Eine Genossenschaft wird dort 180 Wohnungen errichten und es wird im nördlichen Bereich der Fläche eine neue öffentlich Parkanlage mit Spielplatz entstehen. Die im Bereich des früheren Freibads verrohrte Stellau wird dort wieder einen naturnahen Bachverlauf erhalten.
Der Vorhabenbezogene Bebauungsplan Rahlstedt 135 (Wiesenredder) wurde jetzt für einen weiteren Schritt der Öffentlichkeitsbeteiligung ausgelegt. In der Zeit vom 27. Februar bis zum 30. März 2026 können Bürger dazu Stellung nehmen. Einzelheiten dazu kann man der Presseerklärung des Bezirksamts Wandsbek vom 20.2.2026 entnehmen.
Was ist genau geplant:
Es sollen 180 Wohnungen gebaut werden von denen 35% öffentlich gefördert sein werden. 144 Genossenschaftswohnungen werden von der Wohnungsbaugenossenschaft Gartenstadt Wandsbek eG errichtet, davon 63 öffentlich geförderte Sozialwohnungen. Daneben wird es auch eine Anzahl Eigentumswohnungen geben.
Im Transparenzportal der Stadt Hamburg wurden zahlreiche Untersuchungsberichte zum Bebauungsplan “Rahlstedt 135” veröffentlicht.
